Hyppää sisältöön

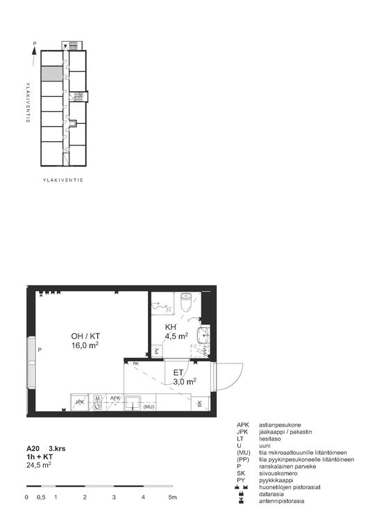
Yläkiventie 9 A 020 Yksiö

Myllypuro, Helsinki
  • Vuokra 616 €/kk
  • The surface area is 24.5 m², 3. kerros
  • Vapautuu 1.4.2026

Talon varustetaso

  • Hissi
  • Internet: DNA
  • Pesutupa
  • Remontoitu tai uusi
  • Sauna
  • Kerhotila

Täytä asuntohakemus

Asuntoa voit hakea asuntohakemuksella heti, kun opiskelupaikkasi on varmistunut. Hakemus on voimassa kolme (3) kuukautta jättöpäivästä. Lisätietoja hakemisesta Hoasille.

Tee asuntohakemus

Kuvia asunnosta

https://cdn.imghoas.fi/21801020/21801020.png?class=carousellayout
 
https://cdn.imghoas.fi/21801020/21801020.png?class=carousellayout

Huoneiston seinät ovat värisävyltään vaaleita. Lattiat on päällystetty vinyylilankulla. Keittiökaapisto on väriltään valkoinen. Työtaso on rosteria. Kalusteiden välitilassa on harmaansävyinen alumiinilevy.Kylpyhuoneen seinät ja lattia on laatoitettu. Seinät ovat vaaleaa ja tummempaa sävyä. Lattia on mustan sävyinen. Pohjakuvat ovat ohjeellisia. Vuokranantaja pidättää oikeuden muutoksiin.

Yläkiventie 9 A 020 Perustiedot

Huoneistotyyppi
Yksiö
Asunnon koko
24.5 m²
Astianpesukoneliitäntä
Kyllä
Pesukoneliitäntä
Kyllä
Kerroksia
3/6
Hissi
Hissi A
Asunnossa sauna
Ei
Sähkö sisältyy vuokraan
Ei
Vesi sisältyy vuokraan
Ei
Lemmikit sallittu
Kyllä

Asunnon laitteet ja varusteet

Liesikupu
Swegon Casa Central
2023
Jääkaappipakastin
Logik L113CW20E
2023
Astianpesukone 60 cm
Logik LDWE60W20N
2023
Erillisuuni
Matsui MBCONX19E
2023
Induktiotaso, 2 keittoaluetta
Matsui MDIHOB19E
2023
Lattialammitys kylpyhuoneessa
Etherma E-2001 BLE
2023
Palovaroitin optinen
Kidde Firex KF20
2023
  • Kenttä on validointitarkoituksiin ja tulee jättää koskemattomaksi.
  • Arvioi kotikiinteistösi yleistunnelmaa, vuokratasoa, sijaintia ja kuntoa. Kirjoitathan arviosi joko suomeksi, ruotsiksi tai englanniksi. Älä laita tekstiin sellaisia tietoja, joista sinut saattaa tunnistaa, esimerkiksi asunnon numeroa. Koska arviot lähetetään anonyymisti, tarkistamme kaikki saadut arviot ennen niiden julkaisua.

    • This field is hidden when viewing the form
      This field is populated using PHP on submit
    • This field is hidden when viewing the form
      This field is populated using PHP on submit
    • This field is hidden when viewing the form
      This field is populated using PHP on submit

    Myllypuro

    Myllypurossa sijaitsee Metropolian opiskelukampus, Stadin AO ja Helsingin kielilukion uudet tilat. Suorat bussit vievät Myllypurosta nopeasti mm. Viikin, Kumpulan, Arabian ja Malmin kampuksille. Metrolla pääsee kätevästi keskustakampukselle tai vaikka Otaniemeen asti.

    Tutustu Myllypuroon

    Katso myös nämä alueet

    Sinulla näyttäisi olevan mainosten estäjä päällä (esim. Ad Block).

    Jotta voisimme taata että sivusto toimii oikein, suosittelemme laajennuksen ottamista pois päältä.