Hyppää sisältöön

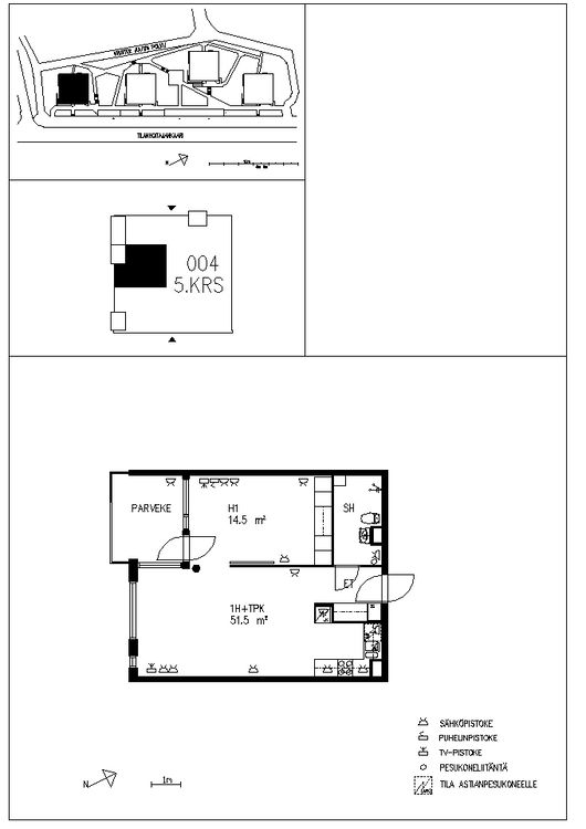
Tilanhoitajankaari 11 D 112 Kaksio

Viikki, Helsinki
  • Vuokra 804 €/kk
  • The surface area is 51.5 m², 5. kerros

Talon varustetaso

  • Hissi
  • Internet: DNA
  • Pesutupa
  • Sauna
  • Kerhotila

Täytä asuntohakemus

Asuntoa voit hakea asuntohakemuksella heti, kun opiskelupaikkasi on varmistunut. Hakemus on voimassa kolme (3) kuukautta jättöpäivästä. Lisätietoja hakemisesta Hoasille.

Tee asuntohakemus

Kuvia asunnosta

https://cdn.imghoas.fi/17104112/17104112.png?class=carousellayout
 
https://cdn.imghoas.fi/17104112/17104112.png?class=carousellayout

Kiinteistö on valmistunut vuonna 2000.Huoneiston ovet ja seinät ovat vaaleat, lattiassa vaalea muovimatto. Keittiökalusteet ovat vaaleat, kaapistojen välitila laatoitettu. Kalusteet: eteisnaulakko, siivouskomero, pesuhuoneessa peilikaappi, keittiökalusteet, vaatekomerot.Laitteet: jääkaappi, nelilevyinen liesi, liesikupu.Verhokorkeus verhokiskosta ikkunan alareunaan on 170-220 cm.Pohjakuvat ovat ohjeellisia. Vuokranantaja pidättää oikeuden muutoksiin.

Tilanhoitajankaari 11 D 112 Perustiedot

Huoneistotyyppi
Kaksio
Asunnon koko
51.5 m²
Astianpesukoneliitäntä
Kyllä
Pesukoneliitäntä
Kyllä
Kerroksia
5/6
Hissi
Hissi A , Hissi B , Hissi C , Hissi D
Asunnossa sauna
Ei
Sähkö sisältyy vuokraan
Ei
Vesi sisältyy vuokraan
Kyllä
Lemmikit sallittu
Kyllä

Asunnon laitteet ja varusteet

Lattialiesi
Rosenlew RKL5100
2020
Jääkaappipakastin
UPO UCN62EW
2024
  • Kenttä on validointitarkoituksiin ja tulee jättää koskemattomaksi.
  • Arvioi kotikiinteistösi yleistunnelmaa, vuokratasoa, sijaintia ja kuntoa. Kirjoitathan arviosi joko suomeksi, ruotsiksi tai englanniksi. Älä laita tekstiin sellaisia tietoja, joista sinut saattaa tunnistaa, esimerkiksi asunnon numeroa. Koska arviot lähetetään anonyymisti, tarkistamme kaikki saadut arviot ennen niiden julkaisua.

    • This field is hidden when viewing the form
      This field is populated using PHP on submit
    • This field is hidden when viewing the form
      This field is populated using PHP on submit
    • This field is hidden when viewing the form
      This field is populated using PHP on submit

    Viikki

    Viikki on eloisa ja kylämäinen kaupunginosa, jossa yliopistokampus ja luonto kulkevat käsi kädessä. Erinomaisten liikenneyhteyksien varrelta löytyy sekä arjen palvelut että avarat pellot ja Vanhankaupunginlahden monipuoliset ulkoilumaastot.

    Alempi Talonpojantie 4 Hoas Viikki
    Viikki

    Katso myös nämä alueet


    Sinulla näyttäisi olevan mainosten estäjä päällä (esim. Ad Block).

    Jotta voisimme taata että sivusto toimii oikein, suosittelemme laajennuksen ottamista pois päältä.