Hyppää sisältöön
Etusivu Kohteet Kilonportti 1 C 062, Kaksio

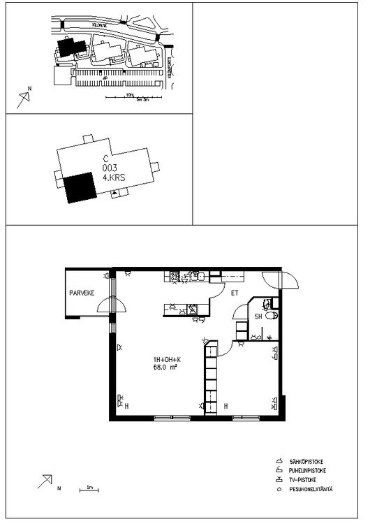
Kilonportti 1 C 062 Kaksio

Kilo, Espoo
  • Vuokra 915 €/kk
  • Pinta-ala on 68 m², 4. kerros

Talon varustetaso

  • Hissi
  • Internet: DNA
  • Pesutupa
  • Remontoitu tai uusi
  • Sauna
  • Kerhotila

Täytä asuntohakemus

Asuntoa voit hakea asuntohakemuksella heti, kun opiskelupaikkasi on varmistunut. Hakemus on voimassa kolme (3) kuukautta jättöpäivästä. Lisätietoja hakemisesta Hoasille.

Tee asuntohakemus

Kuvia asunnosta

https://cdn.imghoas.fi/18503062/18503062.png?class=carousellayout
 
https://cdn.imghoas.fi/18503062/18503062.png?class=carousellayout

Huoneistossa valmistunut viihtyvyyskorjaus 2021. Huoneiston ovet ja seinät ovat vaaleat, lattiassa vinyylilankku. Keittiökalusteet ovat vaaleat, kaapistojen välitilassa välitilalaminaatti. Kalusteet: eteisnaulakko, siivouskomero, keittiökalusteet, vaatekomerot. Laitteet: jääkaappi/pakastin tai jääkaappi pakastelokerolla, nelilevyinen liesi, liesikupu. Pohjakuvat ovat ohjeellisia. Vuokranantaja pidättää oikeuden muutoksiin.

Kilonportti 1 C 062 Perustiedot

Huoneistotyyppi
Kaksio
Asunnon koko
68 m²
Astianpesukoneliitäntä
Kyllä
Pesukoneliitäntä
Kyllä
Kerroksia
4/3
Hissi
Hissi A , Hissi B , Hissi C
Asunnossa sauna
Ei
Sähkö sisältyy vuokraan
Ei
Vesi sisältyy vuokraan
Kyllä
Lemmikit sallittu
Kyllä

Asunnon laitteet ja varusteet

Jääkaappipakastin
Rosenlew rjp4547 (o)
1900
Liesikupu
Vallox ktxea
1900
Lattialiesi
Rosenlew rkl5100
1900
Palovaroitin optinen
Ajax FireProtect - Wireless
2025
  • Kenttä on validointitarkoituksiin ja tulee jättää koskemattomaksi.
  • Arvioi kotikiinteistösi yleistunnelmaa, vuokratasoa, sijaintia ja kuntoa. Kirjoitathan arviosi joko suomeksi, ruotsiksi tai englanniksi. Älä laita tekstiin sellaisia tietoja, joista sinut saattaa tunnistaa, esimerkiksi asunnon numeroa. Koska arviot lähetetään anonyymisti, tarkistamme kaikki saadut arviot ennen niiden julkaisua.

    • This field is hidden when viewing the form
      This field is populated using PHP on submit
    • This field is hidden when viewing the form
      This field is populated using PHP on submit
    • This field is hidden when viewing the form
      This field is populated using PHP on submit

    Kilo

    Kilo on rauhallinen, pientalovaltainen kaupunginosa erinomaisten yhteyksien varrella. Junalla pääsee helposti Leppävaaraan, josta löytyy kattavat palvelut ja vapaa-ajanviettomahdollisuudet. Lähellä ovat myös ulkoilureitit ja urheilupuisto.

    Kilonportti Hoas Kilo
    Kilo

    Katso myös nämä alueet

    Sinulla näyttäisi olevan mainosten estäjä päällä (esim. Ad Block).

    Jotta voisimme taata että sivusto toimii oikein, suosittelemme laajennuksen ottamista pois päältä.