Hyppää sisältöön

Juustenintie 3 J 106 Kolmio

Malminkartano, Helsinki
  • Vuokra 825 €/kk
  • The surface area is 65 m², 2. kerros

Talon varustetaso

  • Internet: DNA
  • Pesutupa
  • Sauna
  • Kerhotila

Täytä asuntohakemus

Asuntoa voit hakea asuntohakemuksella heti, kun opiskelupaikkasi on varmistunut. Hakemus on voimassa kolme (3) kuukautta jättöpäivästä. Lisätietoja hakemisesta Hoasille.

Tee asuntohakemus

Kuvia asunnosta

https://cdn.imghoas.fi/13309106/13309106.png?class=carousellayout
 
https://cdn.imghoas.fi/13309106/13309106.png?class=carousellayout

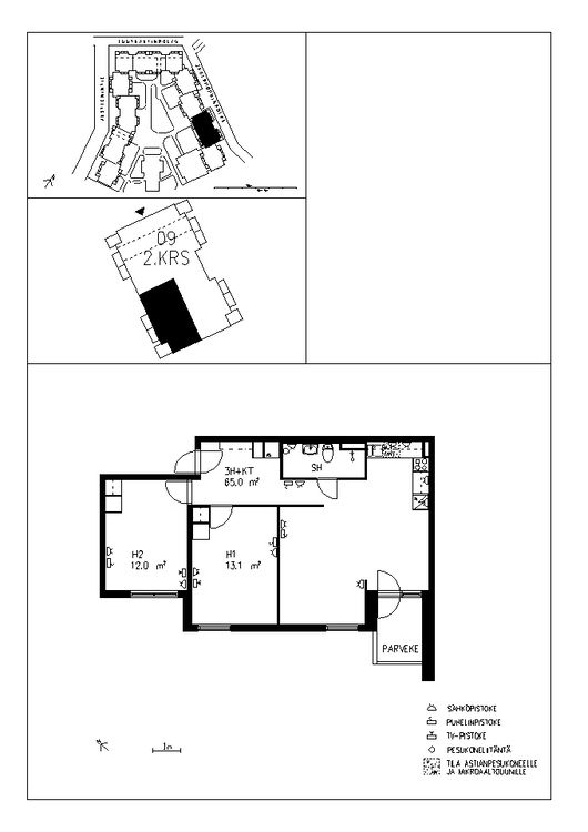
Huoneiston ovet ja seinät ovat vaaleat. Lattiassa on vinyylilankku. Keittiökalusteet ovat vaaleat, kaapistojen välitila on laatoitettu.Asunnossa on eteisnaulakko ja vaatekaappeja. Pohjakuvat ovat ohjeellisia. Vuokranantaja pidättää oikeuden muutoksiin.

Juustenintie 3 J 106 Perustiedot

Huoneistotyyppi
Kolmio
Asunnon koko
65 m²
Astianpesukoneliitäntä
Kyllä
Pesukoneliitäntä
Kyllä
Kerroksia
2/4
Hissi
-
Asunnossa sauna
Ei
Sähkö sisältyy vuokraan
Kyllä
Vesi sisältyy vuokraan
Kyllä
Lemmikit sallittu
Kyllä

Asunnon laitteet ja varusteet

Jääkaappipakastin
Rosenlew RJP4544
2016
Lattialiesi
Rosenlew RKL5101
2022
Liesikupu
Ei tiedossa
1900
  • Kenttä on validointitarkoituksiin ja tulee jättää koskemattomaksi.
  • Arvioi kotikiinteistösi yleistunnelmaa, vuokratasoa, sijaintia ja kuntoa. Kirjoitathan arviosi joko suomeksi, ruotsiksi tai englanniksi. Älä laita tekstiin sellaisia tietoja, joista sinut saattaa tunnistaa, esimerkiksi asunnon numeroa. Koska arviot lähetetään anonyymisti, tarkistamme kaikki saadut arviot ennen niiden julkaisua.

    • This field is hidden when viewing the form
      This field is populated using PHP on submit
    • This field is hidden when viewing the form
      This field is populated using PHP on submit
    • This field is hidden when viewing the form
      This field is populated using PHP on submit

    Malminkartano

    Malminkartano on vihreä ja kylämäinen kaupunginosa Kehäradan varrella. Ulkoiluun houkuttelevat Malminkartanonhuipun portaat, Mätäjoki ja pyöräreitit. Peruspalvelut löytyvät läheltä, ja junalla pääsee keskustaan vartissa.

    Malminkartano Hoas
    Malminkartano

    Katso myös nämä alueet


    Sinulla näyttäisi olevan mainosten estäjä päällä (esim. Ad Block).

    Jotta voisimme taata että sivusto toimii oikein, suosittelemme laajennuksen ottamista pois päältä.