Hyppää sisältöön

Leppäsuonkatu 9b B 059 Yksiö

Kamppi, Helsinki
  • Vuokra 711 €/kk
  • Huoneiston kunto  erinomainen
  • The surface area is 28.5 m², 7. kerros
  • Vapautuu 1.4.2026

Talon varustetaso

  • Hissi
  • Internet: DNA
  • Pesutupa
  • Sauna
  • Kerhotila

Täytä asuntohakemus

Asuntoa voit hakea asuntohakemuksella heti, kun opiskelupaikkasi on varmistunut. Hakemus on voimassa kolme (3) kuukautta jättöpäivästä. Lisätietoja hakemisesta Hoasille.

Tee asuntohakemus

Kuvia asunnosta

https://cdn.imghoas.fi/22601059/22601059.png?class=carousellayout
 
https://cdn.imghoas.fi/22601059/22601059.png?class=carousellayout

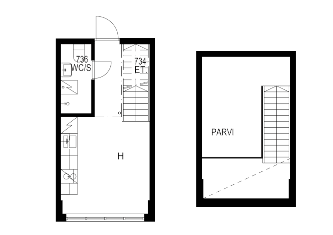
Huoneiston ovet ja seinät ovat vaaleat, lattiassa harmaansävyinen muovimatto. Keittiönkaapit ovat valkoiset ja listat puunväriset. Asunnossa on vaatekaapit. Keittiön varusteisiin kuuluu jääkaappi/pakastin, nelilevyinen liesi, uuni ja liesikupu. Asunnossa on parvi, jossa mahtuu seisomaan. Pohjakuvat ovat ohjeellisia. Vuokranantaja pidättää oikeuden muutoksiin.

Leppäsuonkatu 9b B 059 Perustiedot

Huoneistotyyppi
Yksiö
Asunnon koko
28.5 m²
Astianpesukoneliitäntä
Ei
Pesukoneliitäntä
Ei
Kerroksia
7/8
Hissi
Hissi B3 , Hissi B1 , Hissi B2
Asunnossa sauna
Ei
Sähkö sisältyy vuokraan
Kyllä
Vesi sisältyy vuokraan
Kyllä
Lemmikit sallittu
Kyllä

Asunnon laitteet ja varusteet

Liesi
Ei tiedossa
1900
Kylmälaite
Ei tiedossa
1900
  • Kenttä on validointitarkoituksiin ja tulee jättää koskemattomaksi.
  • Arvioi kotikiinteistösi yleistunnelmaa, vuokratasoa, sijaintia ja kuntoa. Kirjoitathan arviosi joko suomeksi, ruotsiksi tai englanniksi. Älä laita tekstiin sellaisia tietoja, joista sinut saattaa tunnistaa, esimerkiksi asunnon numeroa. Koska arviot lähetetään anonyymisti, tarkistamme kaikki saadut arviot ennen niiden julkaisua.

    • This field is hidden when viewing the form
      This field is populated using PHP on submit
    • This field is hidden when viewing the form
      This field is populated using PHP on submit
    • This field is hidden when viewing the form
      This field is populated using PHP on submit

    Kamppi

    Kampin ja Etu-Töölön rajoilla sijaitseva alue on toisaalta aivan ydinkeskustan tuntumassa ja toisaalta vain lyhyen kävelymatkan päässä kauniista Lapinlahdesta ja Hietaniemestä.

    Kamppi Hoas
    Tutustu Kamppiin

    Katso myös nämä alueet

    Sinulla näyttäisi olevan mainosten estäjä päällä (esim. Ad Block).

    Jotta voisimme taata että sivusto toimii oikein, suosittelemme laajennuksen ottamista pois päältä.