Hyppää sisältöön

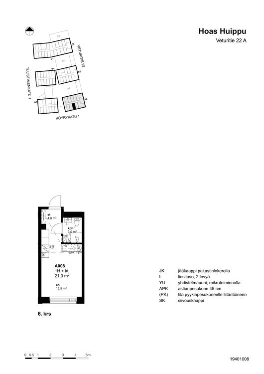
Veturitie 22 A 008 Yksiö

Pasila, Helsinki
  • Vuokra 640 €/kk
  • Huoneiston kunto  erinomainen
  • The surface area is 21 m², 6. kerros
  • Vapautuu 1.4.2026

Talon varustetaso

  • Hissi
  • Internet: DNA
  • Pesutupa
  • Remontoitu tai uusi
  • Sauna
  • Kerhotila

Täytä asuntohakemus

Asuntoa voit hakea asuntohakemuksella heti, kun opiskelupaikkasi on varmistunut. Hakemus on voimassa kolme (3) kuukautta jättöpäivästä. Lisätietoja hakemisesta Hoasille.

Tee asuntohakemus

Kuvia asunnosta

https://cdn.imghoas.fi/19401008/19401008.png?class=carousellayout
 
https://cdn.imghoas.fi/19401008/19401008.png?class=carousellayout

Moderni ja käytännöllinen opiskelijakoti kaupunkiasujalle

Valoisa ja hyvin varusteltu yksiö sopii helppoa kaupunkiasumista arvostavalle opiskelijalle. Valkoiset seinät yhdistyvät puunväriseen, puukuvioiseen vinyylilankkulattiaan.

Laadukkaasti varustellussa keittiössä on 45 cm leveä astianpesukone, jääkaappi pakastinlokerolla, kaksilevyinen keraaminen liesi, 60 cm levyinen yhdistelmäuuni sekä liesituuletin. Keittiökalusteet ovat valkoiset, ja kaapistojen välitilana on shamppanjanvärinen komposiittilevy. Työtaso on vaaleanharmaata, kivikuvioitua laminaattia. Asunnossa on monipuoliset jätteenlajittelumahdollisuudet seitsemälle eri jätelajille.

Kylpyhuone on sisustettu vaaleilla, kivikuvioiduilla keraamisilla laatoilla. Allas- ja peilikaappi ovat tummanharmaat ja kirkkaasta lasista valmistettu suihkuseinä tekee tilasta avaran. Kylpyhuoneessa on varaus 45 cm leveälle pyykinpesukoneelle.

Lemmikit ovat tervetulleita.

Pohjakuvat ovat ohjeellisia. Vuokranantaja pidättää oikeuden muutoksiin.

Veturitie 22 A 008 Perustiedot

Huoneistotyyppi
Yksiö
Asunnon koko
21 m²
Astianpesukoneliitäntä
Kyllä
Pesukoneliitäntä
Kyllä
Kerroksia
6/14
Hissi
Hissi B2 , Hissi B1 , Hissi C2
Asunnossa sauna
Ei
Sähkö sisältyy vuokraan
Ei
Vesi sisältyy vuokraan
Ei
Lemmikit sallittu
Kyllä

Asunnon laitteet ja varusteet

Yhdistelmäuuni
Electrolux CKM806CV
2025
Jääkaappi pakastelokerolla
Electrolux LXB1SE11W0
2025
Astianpesukone 45cm
Electrolux ESA12100SW
2025
Keraaminen Liesitaso 2
Electrolux HOC336F
2025
Liesikupu
Airfi Pia
2025
  • Kenttä on validointitarkoituksiin ja tulee jättää koskemattomaksi.
  • Arvioi kotikiinteistösi yleistunnelmaa, vuokratasoa, sijaintia ja kuntoa. Kirjoitathan arviosi joko suomeksi, ruotsiksi tai englanniksi. Älä laita tekstiin sellaisia tietoja, joista sinut saattaa tunnistaa, esimerkiksi asunnon numeroa. Koska arviot lähetetään anonyymisti, tarkistamme kaikki saadut arviot ennen niiden julkaisua.

    • This field is hidden when viewing the form
      This field is populated using PHP on submit
    • This field is hidden when viewing the form
      This field is populated using PHP on submit
    • This field is hidden when viewing the form
      This field is populated using PHP on submit

    Pasila

    Pasilassa yhdistyvät keskeinen sijainnin, loistavat liikenneyhteydet ja upeat ulkoilumaastot. Keskuspuisto alkaa lähes kotiovelta ja Tripla tarjoaa monipuoliset palvelut aivan vieressä.

    Länsi-Pasila Hoas
    Pasila

    Katso myös nämä alueet

    Sinulla näyttäisi olevan mainosten estäjä päällä (esim. Ad Block).

    Jotta voisimme taata että sivusto toimii oikein, suosittelemme laajennuksen ottamista pois päältä.