Hyppää sisältöön
Etusivu Kohteet Harustie 7 B 015, Soluhuone

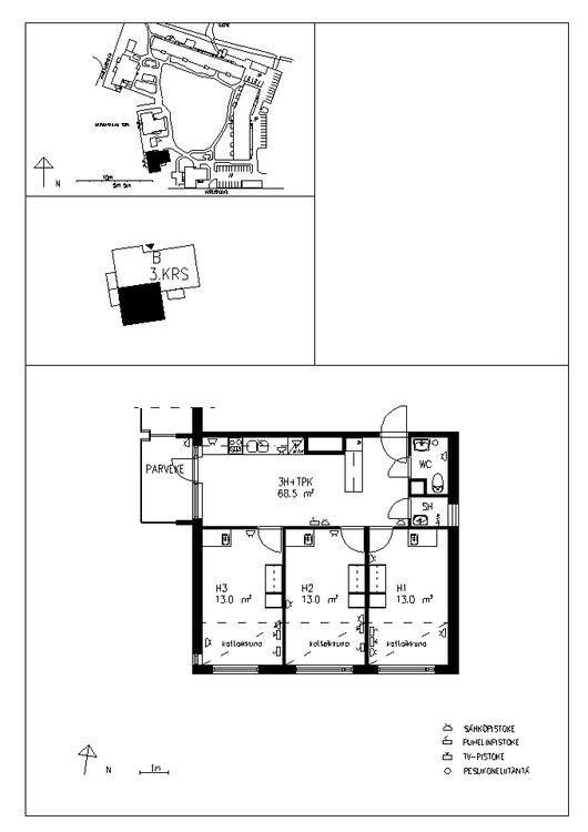
Harustie 7 B 015 Soluhuone

Rastila, Helsinki
  • Vuokra 313 €/kk
  • The surface area is 13 m², 3. kerros
  • Soluasunto miehille
  • Asunto vapaana

Talon varustetaso

  • Hissi
  • Internet: DNA
  • Pesutupa
  • Sauna
  • Kerhotila

Täytä asuntohakemus

Asuntoa voit hakea asuntohakemuksella heti, kun opiskelupaikkasi on varmistunut. Hakemus on voimassa kolme (3) kuukautta jättöpäivästä. Lisätietoja hakemisesta Hoasille.

Tee asuntohakemus

Kuvia huoneesta sekä asunnosta

https://cdn.imghoas.fi/27202015/27202015.png?class=carousellayout
https://cdn.imghoas.fi/27202015/27202015.png?class=carousellayout
 
https://cdn.imghoas.fi/27202015/27202015.png?class=carousellayout
https://cdn.imghoas.fi/27202015/27202015.png?class=carousellayout

Asunnossa vapaana huone miespuoliselle opiskelijalle

Huoneiston seinät ovat värisävyltään vaaleita. Laminaattilattia, värisävy Tammi Nordic. Keittiökalusteet ovat vaaleat. Laminaattitaso, tumma grafiitti. Keittiön välitila laatoitettu. Kylpyhuoneen seinät on laatoitettu. Laatat kiiltävää valoista ja harmaata. Lattiassa epoksi-pinnoite, värisävy harmaa. Huoneistossa on eteisnaulakko ja komeroita.Pohjakuvat ovat ohjeellisia. Vuokranantaja pidättää oikeuden muutoksiin.

Harustie 7 B 015 Perustiedot

Huoneistotyyppi
Soluhuone
Huoneen koko
13 m²
Asunnon koko
68.5 m²
Astianpesukoneliitäntä
Kyllä
Pesukoneliitäntä
Kyllä
Kerroksia
3/3
Hissi
Hissi D
Asunnossa sauna
Ei
Sähkö sisältyy vuokraan
Kyllä
Vesi sisältyy vuokraan
Kyllä
Lemmikit sallittu
Ei

Asunnon laitteet ja varusteet

Jääkaappipakastin
UPO RF121
2015
Lattialiesi
Rosenlew RKL5101
2022
Liesikupu
Ei tiedossa
1900
  • Kenttä on validointitarkoituksiin ja tulee jättää koskemattomaksi.
  • Arvioi kotikiinteistösi yleistunnelmaa, vuokratasoa, sijaintia ja kuntoa. Kirjoitathan arviosi joko suomeksi, ruotsiksi tai englanniksi. Älä laita tekstiin sellaisia tietoja, joista sinut saattaa tunnistaa, esimerkiksi asunnon numeroa. Koska arviot lähetetään anonyymisti, tarkistamme kaikki saadut arviot ennen niiden julkaisua.

    • This field is hidden when viewing the form
      This field is populated using PHP on submit
    • This field is hidden when viewing the form
      This field is populated using PHP on submit
    • This field is hidden when viewing the form
      This field is populated using PHP on submit

    Rastila

    Rastila tarjoaa opiskelijalle loistavan yhdistelmän luontoa ja sujuvaa arkea. Metro vie keskustaan alle 20 minuutissa, ja kampukset Myllypurossa ja Viikissä ovat helposti saavutettavissa. Lähellä odottavat uimaranta, merenranta ja upeat ulkoilumaastot, ja peruspalvelut löytyvät omalta alueelta.

    Harustie 8 Hoas Rastila
    Tutustu Rastilaan

    Alueen kohteet

    Katso myös nämä alueet

    Sinulla näyttäisi olevan mainosten estäjä päällä (esim. Ad Block).

    Jotta voisimme taata että sivusto toimii oikein, suosittelemme laajennuksen ottamista pois päältä.